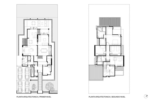
Residencia BGC
TIPO: Vivienda Unifamilar
ÁREA: 340m2
LOCALIZACIÓN: Ayarco Sur, Curridabat
ETAPA: Planos Constructivos
AÑO: 2011

contacto
proyectos
equipo
perfil
linea1
linea2