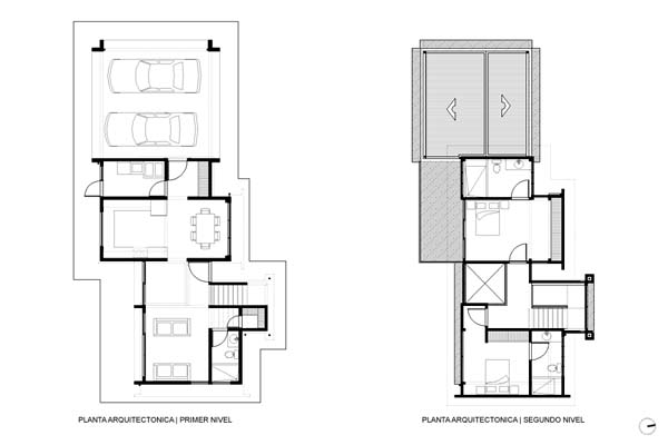
Residencia LDL
TIPO: Vivienda Unifamilar
ÁREA: 160m2
LOCALIZACIÓN: Turrúcares, Alajuela
ETAPA: En Construcción
AÑO: 2010

contacto
proyectos
equipo
perfil
linea1
linea2